- 株式会社CHIC
- 土地をエリアから探す
- さいたま市大宮区
- 北袋町
- さいたま市大宮区北袋町2丁目 売地 全1区画
土地
さいたま市大宮区北袋町2丁目 売地 全1区画
情報更新日:2026/04/27 次回更新予定日:2026/05/11 取引条件有効期限:2026/05/11
所在地埼玉県さいたま市大宮区北袋町2丁目[周辺地図]
交 通京浜東北・根岸線「さいたま新都心」駅徒歩14分





ここがおすすめ!
【通勤通学に便利!】JR京浜東北線『さいたま新都心』駅徒歩14分!駅前には商業施設が充実!通勤通学に便利な立地!
【間取りプランございます!】参考間取りプランがございます!プレゼンテーションも可能!建築条件外し可能!
【子育てにも適した住環境!】徒歩10分圏内に大型商業施設などが揃い公園も多く子育てにも適した住環境!
【通勤通学に便利!】JR京浜東北線『さいたま新都心』駅徒歩14分!駅前には商業施設が充実!通勤通学に便利な立地!
【間取りプランございます!】参考間取りプランがございます!プレゼンテーションも可能!建築条件外し可能!
【子育てにも適した住環境!】徒歩10分圏内に大型商業施設などが揃い公園も多く子育てにも適した住環境!
担当スタッフより

- 佐藤 雅人
- 【参考間取りプラン有】JR京浜東北線『さいたま新都心』駅徒歩14分の閑静な住宅街に新たなコミュニティが誕生!駅前は商業施設が充実!参考プランございます!建築条件外し可能!お気軽にお問い合わせください!
各棟情報
物件詳細情報
物件No.20000438680
| 所在地 | 埼玉県さいたま市大宮区北袋町2丁目 | ||
|---|---|---|---|
| 交通 | 京浜東北・根岸線「さいたま新都心」駅徒歩14分 | ||
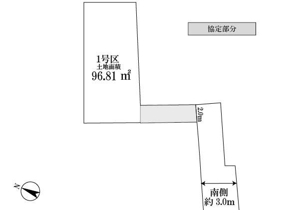
| 土地面積 | 96.81m² 実測 | ||
| 販売区画数 | 1区画 | 用途地域 | 第一種中高層住居専用地域 |
| 建ぺい率 | 60% | 容積率 | 200% |
| 建築条件 | 建築条件付 | 地目 | 宅地 |
| 現況 | 更地 | 権利種類 | 所有権 |
| 取引態様 | 媒介 | ||
- ※価格は物件の代金総額を表示しており、消費税が課税される場合は税込み価格です。(1,000円未満は切り上げ。)
税率は引き渡し時期により異なりますので、各物件の詳細につきましてはお問い合わせください。 - ※敷地権利が借地権のものは価格に権利金を含みます。
- ※制作中に内容が変更される場合もありますので、あらかじめご了承ください。
- ※購入の前には物件内容や契約条件についてご自身で十分な確認をしていただくようにお願いいたします。
- ※完成予想図はいずれも外構、植栽、外観等実際のものとは多少異なることがあります。
- ※CG合成の画像の場合、実際とは多少異なる場合があります。
周辺地図
周辺施設一覧
- ショッピングセンター
- スーパー
- コンビニ
- ドラッグストア
- ホームセンター
- 飲食店
- その他店舗
- 商店街
- 大学
- 専門学校
- 高校・高専
- 中学校
- 小学校
- 保育園
- 幼稚園
- 公民館・児童館
- 病院
- 郵便局
- 役所
- 図書館
- 金融機関
- 警察・消防
- 趣味・娯楽施設
- 公園・運動施設
- 周辺の街並み
- 駅
- その他
お問い合せ先
- 株式会社CHIC
- お電話でのお問い合わせは
03-6913-3288「ホームページを見た」とお問い合わせください - 東京都練馬区下石神井6-41-16 メゾン・ド・ヴェール102号室
- 営業時間:10時~19時
- 定休日:毎週火曜日、水曜日
- 免許番号:東京都知事(1)第110033号



